Finn och fynda
Vad söker du?
TAKFÖNSTERKUPOL VELUX INTEGRA® PLANGLAS
TAKFÖNSTERKUPOL VELUX INTEGRA® PLANGLAS
Vill du ha hjälp att beställa ring oss på 08-34 56 17. Saknar du något tillval, specialmått eller liknande? Kontakta oss för offert här.
Visa enbart lagerstorlekar
Välj tillval (Valfritt)
- Produktbeskrivning
- Mäta & Montera
- Glas & Säkerhet
- Information - Pocket & Kornisch
- Lilla Fönsterskolan
- Båg- respektive karmmontage
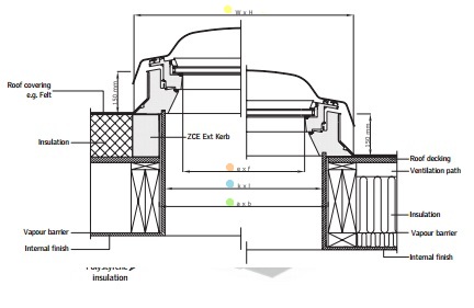
Produktbeskrivning

| Storlek (mått mm) | Yttre ram | Taköppning | Synligt glas | Smygmått |
| BxH | AxB | ExF | KxL | |
| 60x60 | 780x780 | 600x600 | 435x435 | 559x559 |
| 60x90 | 780x1080 | 600x900 | 435x735 | 559x859 |
| 80x80 | 980x980 | 800x800 | 635x635 | 759x759 |
| 90x90 | 1080x1080 | 900x900 | 735x735 | 859x859 |
| 90x120 | 1080x1380 | 900x1200 | 735x1035 | 859x1159 |
| 100x100 | 1180x1180 | 1000x1000 | 835x835 | 959x959 |
| 100x150 | 1180x1680 | 1000x1500 | 835x1335 | 959x1459 |
| 120x120 | 1380x1380 | 1200x1200 | 1035x1035 | 1159x1159 |
Mäta & Montera
Glas & Säkerhet
Information - Pocket & Kornisch
Lilla Fönsterskolan
Båg- respektive karmmontage
Du kanske också är intresserad av
från 17256 kr
Flera storlekar i lager för snabbare leverans





